Ölsta
På norra Färingsö ligger den lilla byn Ölsta, där vår beställare och hennes son bor i ett litet men funktionellt hus. Att bo nära och med naturen var viktigare än stora ytor inomhus. Men, med ett internationellt arbete och en åldrande mamma på andra sidan jorden, blev det tydligt att det fanns ett behov av att kunna ta emot långväga gäster, som kanske också stannar länge. Så väcktes idén om ett gästhus.
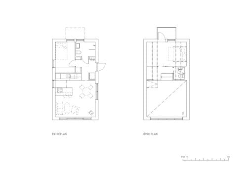
Även gästhuset skulle vara yteffektivt men ändå kännas generöst. Rätt snart blev det tydligt att huset behövde vara större än ett Attefallshus. Det skulle ha ett stort glasparti mot slänten ned mot vägen och ett sovrum med ett stort takfönster så man kan ligga i sängen och titta på stjärnhimlen. Lösningen blev ett stort öppet allrum i ena halvan av huset och två våningar i den andra halvan, med badrum, arbetsrum, entré och förvaring på nedre våningen och en lejdare upp till ett sovrum under stjärnorna och med en balkong ut i trädkronorna på baksidan. För att inte behöva vingla ned för den branta trappan för att gå på toaletten, ordnades ett litet wc även på ovanvåningen.
Nu bor en familj med två vuxna och två barn i huset. Trångt, men med alla funktioner på plats.
Fakta
- År: 2022
- Beställare: Privat
- Kategori: Hus
- Plats: Storstockholm









