Färentuna prästgård
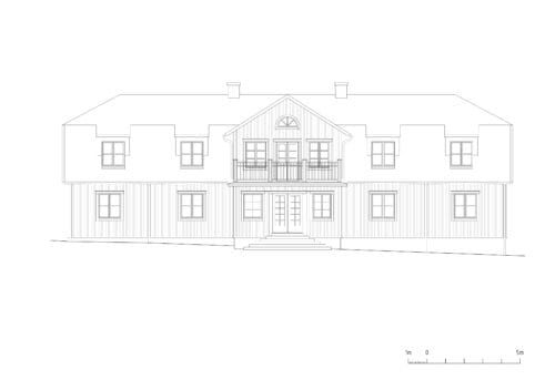
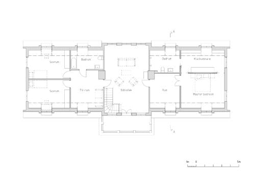
Våra beställare hade flyttat till Långskärs gård ett par år innan de kontaktade oss. De tyckte mycket om sitt hem, men trots det vackra läget och ett välskött hus, så var det något som skavde. En tidigare ägare hade gjort en ambitiös tillbyggnad på vardera sida om huset så att det fått karaktären av en herrgård snarare än en villa, vilket i sig var lyckat. Men husets övre plan, med inredda vindsrum på vardera sidan om ett centralt övre vardagsrum, hade inte alls blivit bra. Trångt, mörkt, lågt i tak och med märkliga nödlösningar. Kunde vi kanske hjälpa dem att lyfta det övre planet?
En enkel första skiss övertygade och vi upprättade ett bygglov för ett taklyft, där det befintliga valmade sadeltaket byttes mot ett brutet halvvalmat tak, ett s.k. mansardtak. Bygglov beviljades och med hjälp av en duktig takstolstillverkare kunde taket lyftas på plats en gnistrande klar novembermorgon. När allt var klart var det som att huset alltid sett ut så här, vilket var precis vad våra beställare ville.
Fakta
- År: 2024
- Beställare: Privat
- Kategori: Hus
- Plats: Storstockholm






